Inventory
Frostwood - Redwood Falls
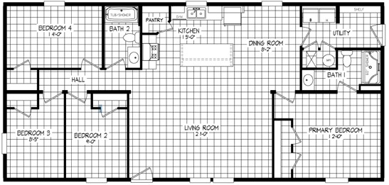
Home Type
Manufactured Home
Construction Type
IRC Construction
Square Footage
1474 sq.ft.
Number of Bedrooms
4
Number of Bathrooms
2
Display Location
Redwood Falls, MN
Home Description
Closeout Storage Home. This home is built and ready to be brought to your location. Spacious rooms, kitchen island, and walk in pantry.

