Inventory
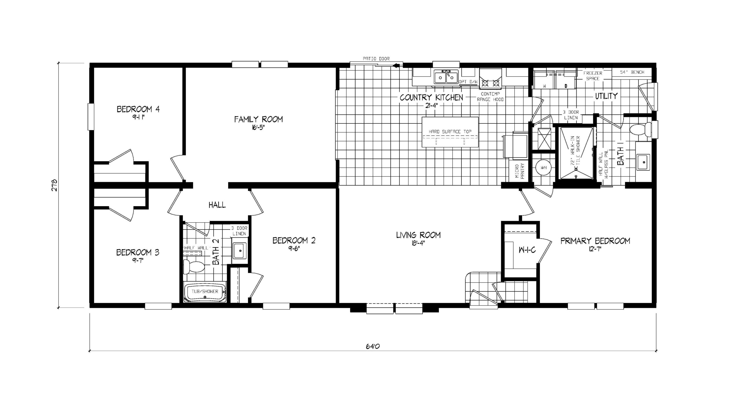
Sagebrook - Paynesville
Home Type
Manufactured Home
Construction Type
HUD Construction
Square Footage
1792 sq.ft.
Number of Bedrooms
4
Number of Bathrooms
2
Display Location
Paynesville, MN
Home Description
The Sagebrook has plenty of room for everyone to enjoy. Spacious living room and dining while also having the bedrooms separated from the primary bedroom. View this home today to see the many options that are available.
